Independent Project - Design and visualization for a micro home using Revit and Lumion.
Elevation 1
Elevation 2
Site Axo
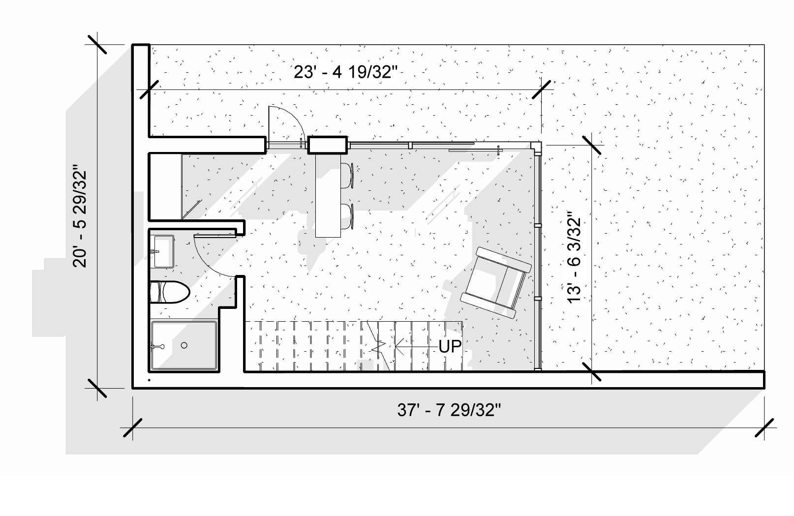
Floor Plan
Section
Exterior Rendering